关于慢病管理中心改造项目设计及清单编制的院内比选公告
来源: 时间:2024-11-19 09:36:57 高县人民医院作为采购人,拟开展医院慢病管理中心改造项目施工图设计及清单编制采购工作,诚邀符合本次要求的单位参加。
一、项目概况
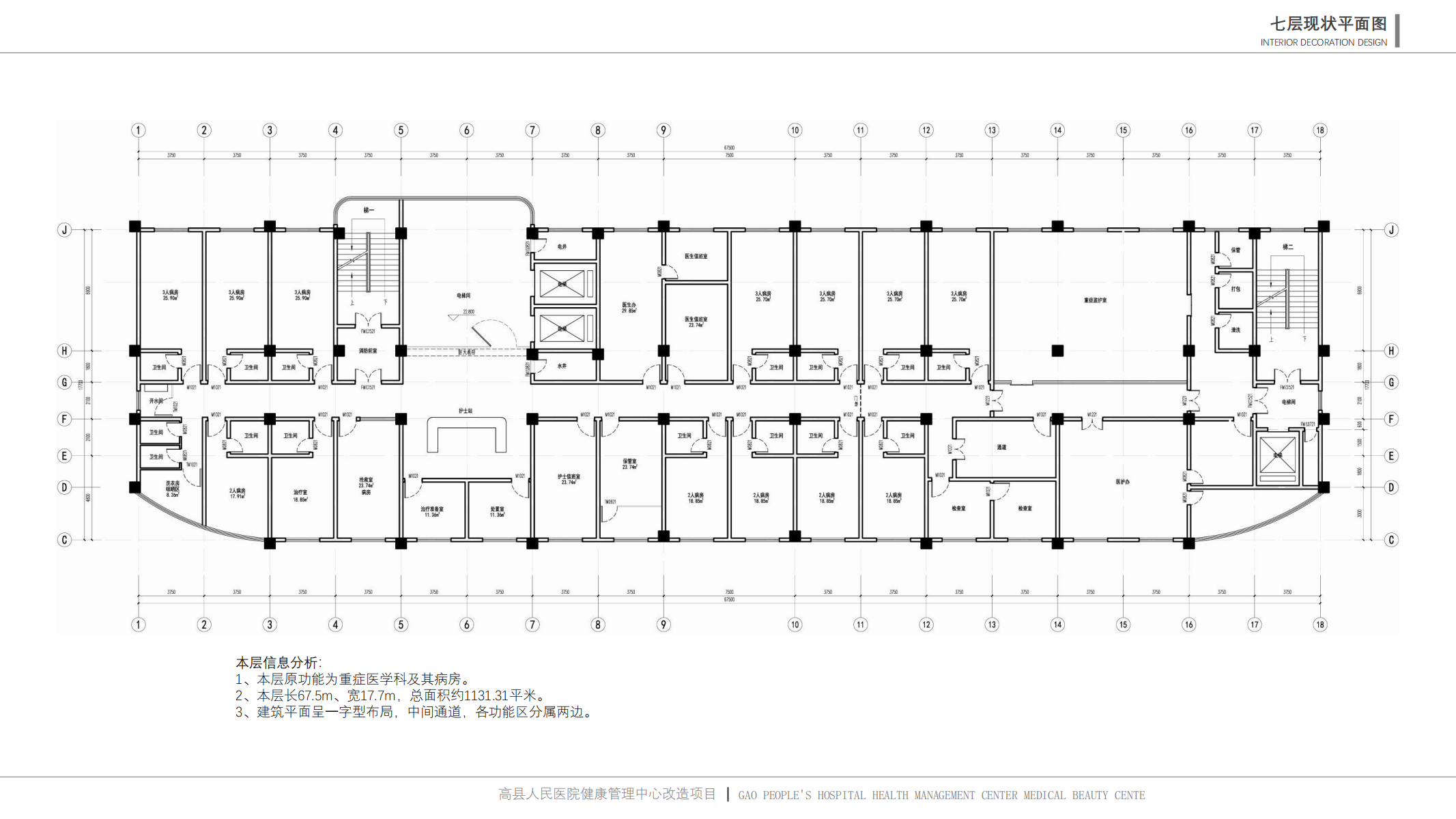
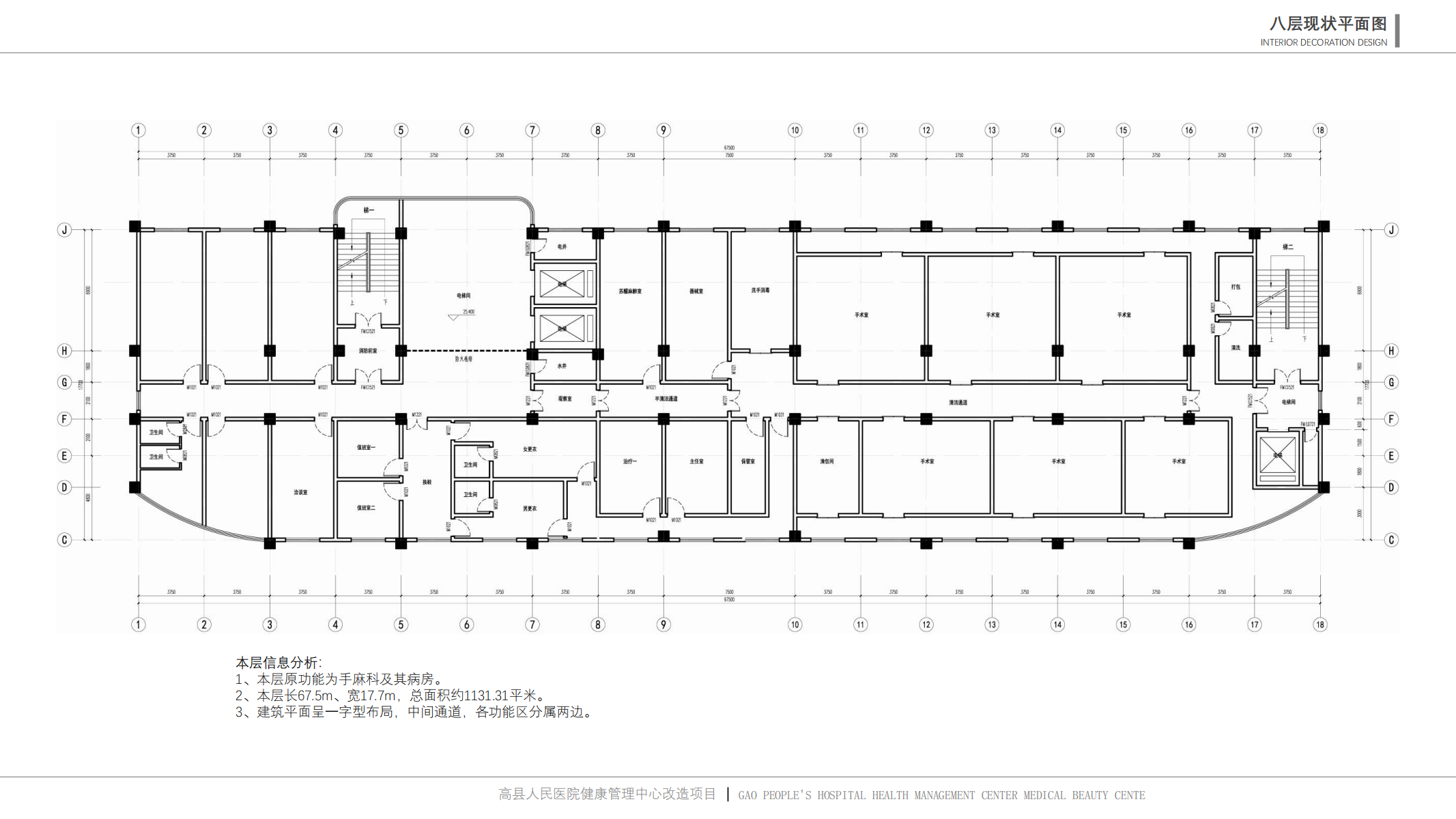
将医院综合大楼第七(原手术室)、八层(重症病房)改造为慢病管理中心[含慢病管理办公室,B超心电(男女分区)、放射检查室,等候区,配餐区等],改造相关业务用房2260平方米、以及外窗、消防、强弱电等相关附属设施的改造;增加空调系统、外置电梯等设备。
(一)改造地点:高县人民医院医院综合大楼
改造位置现场图




(二)项目总投资:396万元,资金来源:医院自筹资金。
二、服务内容:结合原建筑现场实际情况,提供合理化建议并完成平面布局图,经医院讨论同意后,完成本改造项目的初步设计和概算编制(达到县住建局初步设计审查深度),在通过住建审查和县发改批复后,完成施工图设计、工程量预算清单编制、财政评审后完成招标控制价清单编制以及后期施工配合等工作。
三、资质要求:具有建筑设计资质(含消防设计)的单位
四、资料要求:具有符合该项目的资质证明材料(营业执照等)、委托书(委托人及被委托人身份证复印件)报价表等(详见附件相关要求)。
五、报名时间:2024年11月19日至2024年11月21日
每天8:00 – 12:00,14:30 – 17:30(节假日除外)
报名邮箱:caigouban5393102@163.com
三、资质要求:具有建筑设计资质(含消防设计)的单位
四、资料要求:具有符合该项目的资质证明材料(营业执照等)、委托书(委托人及被委托人身份证复印件)报价表等(详见附件相关要求)。
五、报名时间:2024年11月19日至2024年11月21日
每天8:00 – 12:00,14:30 – 17:30(节假日除外)
报名邮箱:caigouban5393102@163.com
六、投标截止时间:2024年11月26日14时59分
七、现场踏勘时间:2024年11月21日15:00
七、现场踏勘时间:2024年11月21日15:00
八、现场提交地点:四川省宜宾市高县庆符镇硕勋路223号 高县人民医院 行政二楼209采购管理办公室
九、开标地点:高县人民医院行政四楼小会议室
十、咨询电话:(采购办)杨老师 0831-5393102
(基建办)闫老师 13990947714
附件一:比价模板
http://www.scgxrmyy.cn/uploadfile/2024/1119/20241119094137240.doc
附件二:报名表
http://www.scgxrmyy.cn/uploadfile/2024/1119/20241119094206731.docx
(基建办)闫老师 13990947714
附件一:比价模板
http://www.scgxrmyy.cn/uploadfile/2024/1119/20241119094137240.doc
附件二:报名表
http://www.scgxrmyy.cn/uploadfile/2024/1119/20241119094206731.docx
高县人民医院
2024年11月19日
2024年11月19日
